Развернуть карту

Продажа производственного помещения, Раменский, Дмитровский район, 142, 150000000 руб.

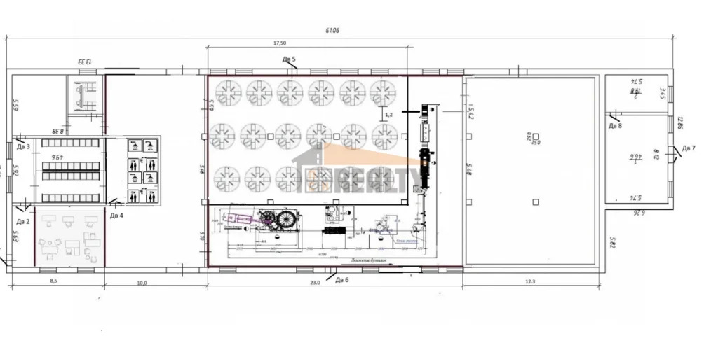
  • Общая площадь, м²988.0

Арт.
Предлагается к продаже здание площадью 988 кв.м. на участке 0,44 Га - возможно увеличение.
Здание бетонное, высота потолков: 4,2-4,5 м.
Отопление: центральное, рядом муниципальная котельная.
На участке водопровод и канализация.
Подключение 60 кВт входит в стоимость!
Подходит под производство, в том числе пищевое, склад, административные цели.

На территории есть также большой склад/производственное здание площадью 7 155 кв.м. с участком 2 Га,1336 кв.м. и другие здания. А так же земли с РНС.

Описание территории:
Комплекс земельных участков с готовыми зданиями, а также участки с возможностью строить здания как с нуля (до 15 000 кв.м.), так и под существующие свидетельства (от 200 до 2 575 кв.м.)
Основное направление: производство, склады.
Общая площадь участков 28 Га.
Инфраструктура:
- 4 МВт электроэнергии, возможно увеличение до 8 МВт.
- на участке водопровод и канализация.
- муниципальная котельная станция.
- асфальтированные проезды.
- охраняемый КПП на въезде.



150000000 руб. | 2272448 $ | 1991455 €

Захарова Зинаида Владимировна

+7 (495) 532-41-14

Изменено: 04 Dec 2025, 22:45:22